logoIhr Partner für Gruppenreisen | Tel.: +49 (0) 20 43 - 2 69 84 | info@efterreisen.de       

03314353   Gruppenhaus AALSCHOLVER, Niederlande

Gemütliche Unterkunft in favorisierter Lage und mit schönem Ambiente.

Aussenansicht vom Gruppenhaus 03314353 Gruppenhaus AALSCHOLVER in Dänemark 4353  Serooskerke (Walcheren) für Gruppenfreizeiten



Lage:
4353 , Serooskerke (Walcheren) in den Niederlanden
Kapazität:
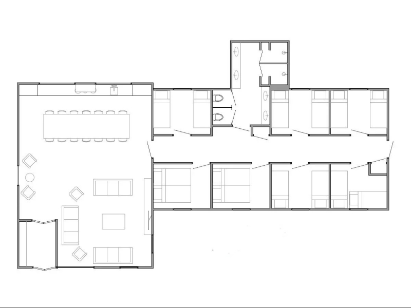
7 - 14 Personen in 7 Schlafzimmern: 7x2-Bett
Barrierefrei:
für 1-2 Pers. in Zimmern
Sanitär/ Aufenthaltsräume:
2 Duschen, 2 WCs, 1 Aufenthaltsräume
Baden:
3,0 km: Freibad , 5,0 km: Meer
Küche:
Haushaltsküche
Entfernungen:
Supermarkt: 2,0 km Bahnhof: 13,0 km Haltestelle: 0,2 km Ortsmitte: 3,0 km Krankenhaus: 13,0 km
Grundstück:
1ha
Verpflegung:
Selbstverpflegung
Sport & Co.:
, , Spielplatz, Spielwiese, Reiten möglich,

Unsere Meinung: Tolles Objekt mit einer guten und modernen Ausstattung; einfach nur schön.







Fußläufig am Dorfrand gelegen.
Der recht ruhige, aber gemütliche kleine Ort ist sehr gepflegt und hat zahlreiche wunderschöne alte Häuser.
Es gibt einen recht gut sortierten Supermarkt, sowie einen größeren Laden für Campingbedarf, zwei/drei gastronomische Angebote, sowie tatsächlich auch ein kleines Freibad.
Bis zur zeeländischen "Haupstadt" Middelburg sind es ca. 0-12km und die Strände von
Oostkapelle und Vrouwenpolder sind nur gut ca. 5km entfernt.

ca. 1ha großes Gelände auf dem sich diverse Unterkünfte befinden, angefangen von Bungalows für 4 Personen, bis hin zu 14-Personen-Unterkünfte (zwei).
Angelegt um eine grozügige Spielwiese mit Picknicktischen, diversen Spielgeräten und einem Trampolin.


Grundrisse von der Gruppenunterkunft 03314353 Gruppenhaus AALSCHOLVER in Dänemark 4353  Serooskerke (Walcheren) für Jugendfreizeiten

Kapazität:
7 - 14 Schlafplätze in 7 Räumen:
 
7x2-Bett, behindertengerecht für 1-2 Personen in Zimmern

Ausschließlich 2-Bettzimmer mit Boxspringbetten.


Aufenthaltsräume:
Aufenthaltsräume insgesamt: 1

Es gibt einen zentralen Gruppenraum, wo sich ein großer Esstisch befindet, mit Platz und Sitzmöglichkeiten für max. 14 Personen und einen Aufenthaltsbereich mit Couches und einem Fernseher.


Küche:
Haushaltsküche

Schöne moderne lange Küchenzeile mit viel Platz zum Arbeiten.
Baden: 3,0 km: Freibad
Es gibt ein kleines Freibad im Dorf.
5,0 km: Meer
Oostkapelle & Vrouwenpolder

Entfernungen:
Supermarkt: 2,0 km Bahnhof: 13,0 km Haltestelle: 0,2 km Ortsmitte: 3,0 km Krankenhaus: 13,0 km

Sport & Co.:
, , Spielplatz, Spielwiese, Reiten möglich,

Freizeit:




,
,
Ausflüge:




Unterkunft:

Geeignet für:


Haustiere
Grundsätzlich erlaubt nach Prüfung und schriftlicher Bestätigung.

Rauchen
Im Gebäude nicht erlaubt.




Bilder sagen mehr als Worte:



Aussenansicht vom Gruppenhaus 03314353 Gruppenhaus AALSCHOLVER in Dänemark 4353  Serooskerke (Walcheren) für Gruppenfreizeiten Weitere Aussenansichten vom Gruppenhaus 03314353 Gruppenhaus AALSCHOLVER in Dänemark 4353  Serooskerke (Walcheren) für Gruppenreisen Küchenbilder von der Gruppenunterkunft 03314353 Gruppenhaus AALSCHOLVER in Dänemark 4353  Serooskerke (Walcheren) für Familienfreizeiten Küchenbilder von der Gruppenunterkunft 03314353 Gruppenhaus AALSCHOLVER in Dänemark 4353  Serooskerke (Walcheren) für Familienfreizeiten Sanitärbilder von der Gruppenunterkunft 03314353 Gruppenhaus AALSCHOLVER in Dänemark 4353  Serooskerke (Walcheren) für Sommerfreizeiten Sanitärbilder von der Gruppenunterkunft 03314353 Gruppenhaus AALSCHOLVER in Dänemark 4353  Serooskerke (Walcheren) für Sommerfreizeiten Sanitärbilder von der Gruppenunterkunft 03314353 Gruppenhaus AALSCHOLVER in Dänemark 4353  Serooskerke (Walcheren) für Sommerfreizeiten Bilder der Aufenthaltsräume vom Gruppenhaus 03314353 Gruppenhaus AALSCHOLVER in Dänemark 4353  Serooskerke (Walcheren) für Konfifreizeiten Schlafzimmerbilder vom Gruppenhaus 03314353 Gruppenhaus AALSCHOLVER in Dänemark 4353  Serooskerke (Walcheren) für Gruppenfreizeiten Schlafzimmerbilder vom Gruppenhaus 03314353 Gruppenhaus AALSCHOLVER in Dänemark 4353  Serooskerke (Walcheren) für Gruppenfreizeiten Schlafzimmerbilder vom Gruppenhaus 03314353 Gruppenhaus AALSCHOLVER in Dänemark 4353  Serooskerke (Walcheren) für Gruppenfreizeiten Terrassenbilder vom Selbstversorgerhaus 03314353 Gruppenhaus AALSCHOLVER in Dänemark 4353  Serooskerke (Walcheren) für Jugendfreizeiten Terrassenbilder vom Selbstversorgerhaus 03314353 Gruppenhaus AALSCHOLVER in Dänemark 4353  Serooskerke (Walcheren) für Jugendfreizeiten Bilder vom Gelände vom Selbstversorgerhaus 03314353 Gruppenhaus AALSCHOLVER in Dänemark 4353  Serooskerke (Walcheren) für Familienfreizeiten Bilder von Sportmöglichkeiten vom Gruppenhaus 03314353 Gruppenhaus AALSCHOLVER in Dänemark 4353  Serooskerke (Walcheren) für Sommerfreizeiten Bilder von Sportmöglichkeiten vom Gruppenhaus 03314353 Gruppenhaus AALSCHOLVER in Dänemark 4353  Serooskerke (Walcheren) für Sommerfreizeiten Bilder der Spielwiese vom Gruppenhaus 03314353 Gruppenhaus AALSCHOLVER in Dänemark 4353  Serooskerke (Walcheren) für Konfifreizeiten Sonstige Bilder vom Gruppenhaus 03314353 Gruppenhaus AALSCHOLVER in Dänemark 4353  Serooskerke (Walcheren) für Gruppenreisen Sonstige Bilder vom Gruppenhaus 03314353 Gruppenhaus AALSCHOLVER in Dänemark 4353  Serooskerke (Walcheren) für Gruppenreisen Sonstige Bilder vom Gruppenhaus 03314353 Gruppenhaus AALSCHOLVER in Dänemark 4353  Serooskerke (Walcheren) für Gruppenreisen Sonstige Bilder vom Gruppenhaus 03314353 Gruppenhaus AALSCHOLVER in Dänemark 4353  Serooskerke (Walcheren) für Gruppenreisen